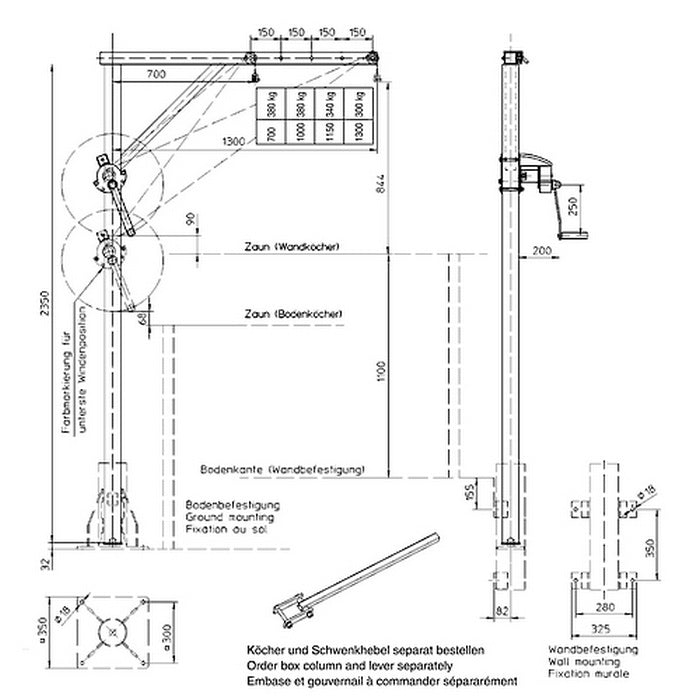
Żuraw obrotowy 4551.0,3 4571.0,3, udźwig 300kg, 700-1300mm
Żuraw obrotowy ze stali nierdzewnej (dostępny również w wersji ocynkowanej), dopuszczalne obciążenie maks. 300 kg, zakres manipulacji 700 - 1300 mm.
Żuraw obrotowy przeznaczony specjalnie dla oczyszczalni ścieków.
Odporne na korozję, cynkowane ogniowo 1.4571.
Może być również dostarczony w wersji ze stali nierdzewnej - stal nierdzewna A 316.
Możliwość montażu na ścianie lub na podłożu.
Zakres obrotu: 360°.
Ramię manipulacyjne o zakresie 700-1300 mm.
Lina stalowa wykonana ze stali nierdzewnej 1.4401 / A 316.
Żuraw sprzedawany bez podstawy.
Podstawe można zamówić przez link poniżej.

| Dźwig z podnośnikiem | Typ | Maks. dopuszczalne obciążenie | Minimalne obciążenie | Nacisk na uchwyt | Wysokość podnoszenia / 1 obrót korby | Długość liny nośnej | Średnica liny nośnej | Konstrukcja liny | Siła drutu | Materiał | Waga dźwigu |
| --- | --- | kg | kg | N | mm | m | mm | --- | N/mm2 | --- | kg |
| 4571.0,3 | 209769 | 300 | 30 | 135 | 46 | 22 | 5 | 7 x 19 / 6 x 19 SE / 6 x 19 IWRC | 1570 | 1.4571 | cca 55 |

